学员宿舍楼层只有一个安全出口,有问题吗?——河南柘城武馆“6.25”重大火灾事故调查报告读后感之二
扫描到手机查看 a>
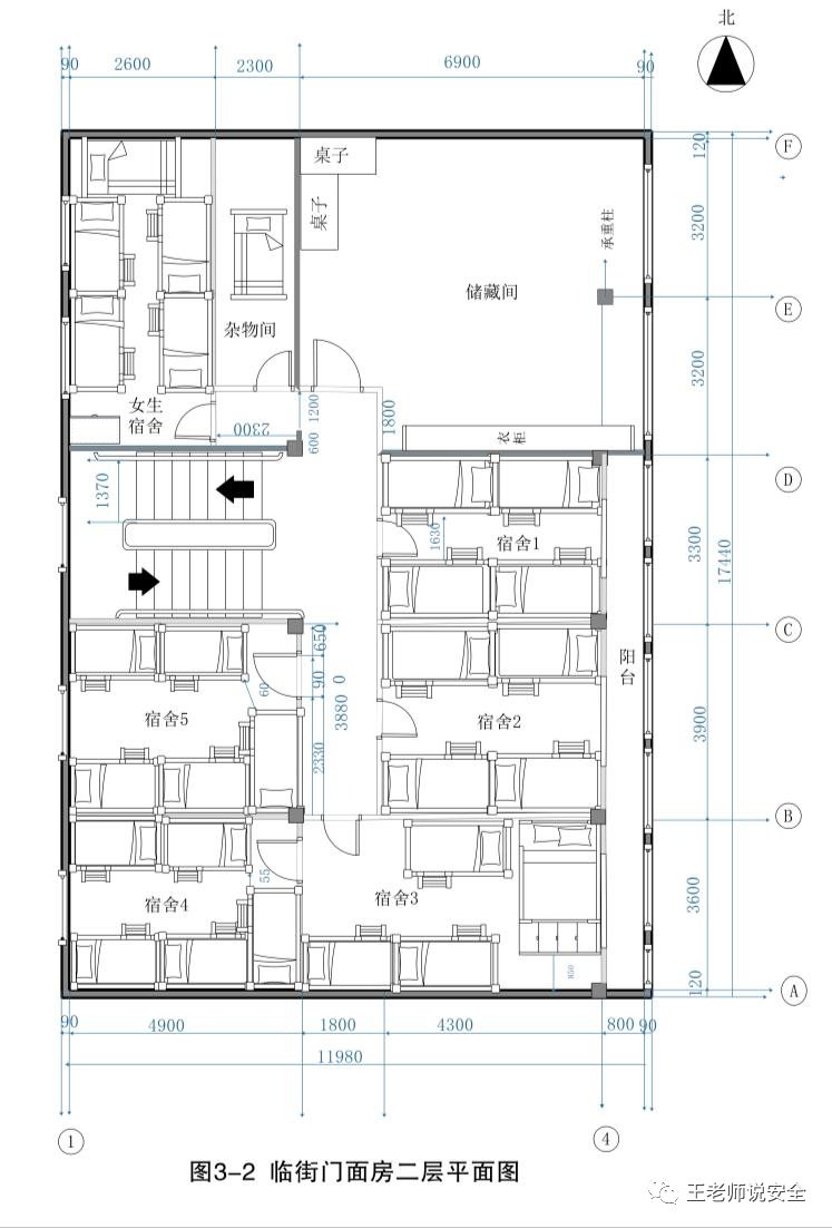
今天分析一个消防管理的细节问题。在之前的河南柘城“6.25”事故调查报告解读中,提到一个问题,就是震兴武馆的二楼是学生们的宿舍区,只有一个开放式疏散楼梯;在一楼火灾发生时,火灾烟气也正是沿着这个楼梯蔓延扩散到二楼,而睡梦中的孩子们在醒来后,这个楼梯被烟火充斥弥漫而无法疏散,只能另寻逃生之路,可是整个楼层并无第二个安全出口!被迫无奈,有一部分孩子从靠近道路一侧的二层窗户跳下,但另外在靠近院内一侧的宿舍的窗户因安装了防护网而无法使用和逃生。最终有18个孩子无辜葬身火海,原本抱着对美好未来的向往而选择白天上课晚上习武的18名花期少年,他们的宝贵的生命永远终止在了追逐梦想的路上!

回看这起事故,要是二楼的宿舍层有另外一个安全出口可供孩子们疏散,他们逃生的可能性就非常大了。但遗憾的是,对于这第二个安全出口的问题,该事故调查报告中竟然几乎未曾提及,而只是说到:“震兴武馆在不具备安全条件的情况下,在临街门面房二层设置学员集体宿舍”。至于这个安全条件是什么,报告前后均未明确。故此,我在之前的报告解读中也特别对安全出口的问题提出不解。

对此,有朋友留言,说是否按照目前的规范,这种集体宿舍无须有两个安全出口,有一个就可以了,所以事故调查报告中对此未曾提及呢?同时有朋友还专门留言给出了“依据”:
这种情况法规可能是不强制设置两个安全出口,所以报告没提吧。(建筑设计防火规范5.5.25 住宅建筑≤27m 任一层面积≤650且任意户门离安全出口≤15m 可以只设置1个)
那么这个依据是否合适,震兴武馆的二楼学员住宿层又是否可以只设置一个安全出口呢?
对于安全出口的问题,当然要看《建筑设计防火规范》,而其最新版本是以下GB 50016(2018版)。
据此建规,我们分析如下:
1、以上朋友提出的依据是建规【5.5.25 】第1条的要求,如果从第一条涉及的数据来看,事故调查报告中的数据,震兴武馆高9.4米,二层建筑面积共计208.7平米,显然不符合 【5.5.25】 第1条的前提条件,也就是其安全出口不需要2个,有一个就满足规范要求了。但情况确实如此吗?

2、在建规第5部分 “5 民用建筑” 的“5.1 建筑分类和耐火等级”中,【表5.1.1 民用建筑的分类】的【注 2】明确提及:
除本规范另有规定外,宿舍、公寓等非住宅类居住建筑的防火要求,应符合本规范有关公共建筑的规定。


按照建规以上的这个解释,震兴武馆的学员宿舍的防火要求,应该符合公共建筑的规定,而非住宅建筑的规定;这对震兴武馆二楼学员宿舍的建筑类别的界定很重要。所以,前面提及的朋友留言,依据对住宅建筑的要求来确定其安全出口的要求,是属于规范选用不当。那么,按照公共建筑的要求,震兴武馆的安全出口是否需要有两个呢?让我们继续看。

3、而公共建筑的安全出口数量确定,依据的是建规的【5.5.8】:公共建筑内每个防火分区或一个防火分区的每个楼层,其安全出口的数量应经计算确定,且不应少于2个。按照该要求,那么震兴武馆的二层宿舍区,至少需要两个安全出口。但是不是据此就可以做出结论了呢?其实还不可以,因为【5.5.8】后面还有一个特殊条款,即符合下列条件之一的公共建筑,可以设置1个安全出口或1不疏散楼梯即可。

4、下面我们就来看一下,震兴武馆是否符合这个特殊条件呢?
对于第一个条件,因为震兴武馆的建筑面积为403.2平米,远大于大于200平米的限定条件,何况还是在二层,不是规范这一条要求的首层。综合来看,显然不符合第一个条件。
对于第二个条件,鉴于震兴武馆是两层建筑,只能参照上表中的第三种情况。因为武馆二层宿舍区的建筑面积为208.7平米,超过了限定的200平米;但因为是稍微超过,如果因此而否定其符合可以设置一个安全出口的条件,感觉有些勉强的话,那么我们继续看其第三个要求,即该层的住宿人数。如何要符合可以设置一个安全出口的条件,其设定的人数是不超过15人;但震兴武馆二层宿舍中居住的学员,事故调查报告中明确提及是39人(事发当晚有34名学员),远超过15人的限定条件。所以,综合楼层、每层建筑面积和人数这三个条件,震兴武馆不符合设置1个安全出口或1部疏散楼梯的条件。

5、综合以上几种情况的分析,参照《建筑设计防火规范》(GB 50016-2014)【2018年版】的规定,震兴武馆二层的学员宿舍层需要设置至少两个安全出口,方可符合规范设计要求,以满足万一火灾等意外发生时紧急疏散的需要。
所以,《河南省柘城县“6.25”重大火灾事故调查报告》中对于安全出口问题的未加以强调和明确提及,便难以给具有类似情况的培训机构以警醒,也难以对有类似学员宿舍或企事业单位职工公寓的消防安全管理提供必要且重要的建议。毕竟,事故对我们的最大价值,并非是所谓的责任人追究(尽管这种警示是必要的),而是事故教训的吸取和类似事故的防范;而事故调查报告便是给我们的教训吸取和事故防范提供客观的依据,严谨应该是最基本的要求。
来源:王老师说安全,如有侵权请联系删除
400-071-1996
河南省郑州市高新区翠竹街2号59楼